Hopspot: vervallen hoeve in Evergem wordt bruisend centrum voor biercultuur (Delmulle Delmulle Architecten)

  • image
  • image
  • image
  • image
  • image
  • image
  • image
  • image
  • image
  • image
  • image
  • image
  • image
  • image

Het Oost-Vlaamse ontwerpbureau Delmulle Delmulle Architecten revitaliseerde voor Brouwerij Van Steenberge een vervallen historische hoeve op de Vaartstraat in Evergem door deze te transformeren tot Hopspot: een bruisend centrum voor biercultuur, landbouw en lokaal toerisme. De restauratie van de oude woning en schuur behoudt het landelijke karakter en de geschiedenis van de hoeve, waarbij traditionele met moderne elementen worden gecombineerd. Het bijzondere ontwerp werd tijdens de jongste editie van de Belgian Construction Awards dan ook terecht bekroond met een Architecture Award.

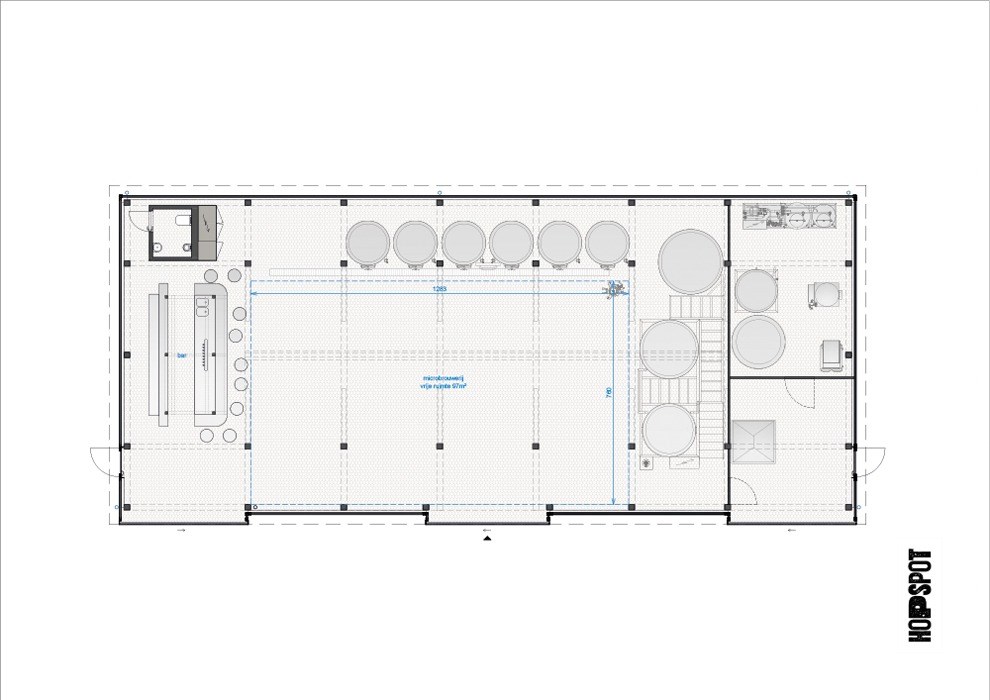
Het ontwerp van Delmulle Delmulle Architecten respecteert de historische identiteit van de site en integreert harmonieus een hedendaagse constructie: een nieuwe loods die wordt gebruikt als microbrouwerij. Deze loods, gebouwd met duurzame en demonteerbare materialen zoals een FSC-gelabeld houten skelet en geïsoleerde polycarbonaatpanelen, voegt een modern, technologisch geavanceerd element toe aan het traditionele ensemble.

Educatief veld

De herontwikkeling legt een sterke nadruk op duurzaamheid en het hergebruik van bestaande materialen. Dakpannen, bakstenen, staal en hout van de oude hoeve worden ter plaatse hergebruikt in de renovatie. Daarnaast worden energiebesparende technieken toegepast, waaronder geothermische warmtepompen, vloerverwarming en een ventilatiesysteem met warmteterugwinning, om een duurzaam en energie-efficiënt gebouw te realiseren.

De agrarische functie van de site wordt behouden en versterkt door de aanleg van hopvelden naast de gebouwen, waar gewassen worden geteeld die gebruikt zullen worden in de brouwerij. Een educatief veld biedt bezoekers de mogelijkheid om het volledige bierbrouwproces te volgen, van het veld tot in het glas. De centrale binnenkoer fungeert als een ontmoetingspunt en terras voor de brasserie, met een inrichting die aansluit bij de landelijke omgeving.

Bier-laboratorium

De hoeve herbergt verschillende functies die zorgen voor een diverse stroom van bezoekers. De microbrouwerij in de nieuwe loods dient als bier-laboratorium waar streekbieren worden gebrouwen en verkocht. Het biedt ook ruimte voor brouwlessen, activiteiten en een ‘tap room’ waar bezoekers vers bier direct uit het vat kunnen proeven.

De brasserie, gevestigd in de oude koestallen, biedt een eenvoudige menukaart die nauw verbonden is met het bier. In de oude woning werd een café ingericht met de uitstraling van een modern bruin café, een uitnodigende plek voor koffie of een lokaal bier. Verder zijn er vier gastenkamers beschikbaar die bezoekers uitnodigen om langer in de streek te verblijven, eventueel gekoppeld aan arrangementen met de brouwerij of brasserie.

Agrarische identiteit

De transformatie tot Hopspot maakt van de historische hoeve niet alleen een belevingsplek voor bierliefhebbers, maar ook een levend voorbeeld van hoe erfgoed en duurzaamheid hand in hand kunnen gaan. De harmonie tussen de gerestaureerde hoeve, de moderne loods en de omliggende hopvelden illustreert een vernieuwende aanpak die traditie en innovatie samenbrengt.

Door haar veelzijdige functies en sterke verankering in de omgeving zet de site een nieuwe standaard voor herbestemmingsprojecten. Hopspot bewijst dat een historische hoeve niet alleen bewaard kan blijven, maar ook kan uitgroeien tot een centrum van lokale cultuur, ambacht en toerisme, terwijl ze haar agrarische identiteit versterkt.

Bron Belgian Construction Awards

  • Deel dit artikel

Onze partners