maf architecten realiseert met Ravelijnplein Nieuwpoort groene en sociale woonomgeving met zorg op maat

  • image
  • image
  • image
  • image
  • image
  • image
  • image
  • image
  • image
  • image
  • image
  • image
  • image
  • image
  • image
  • image
  • image
  • image
  • image
  • image
  • image
  • image
  • image
  • image

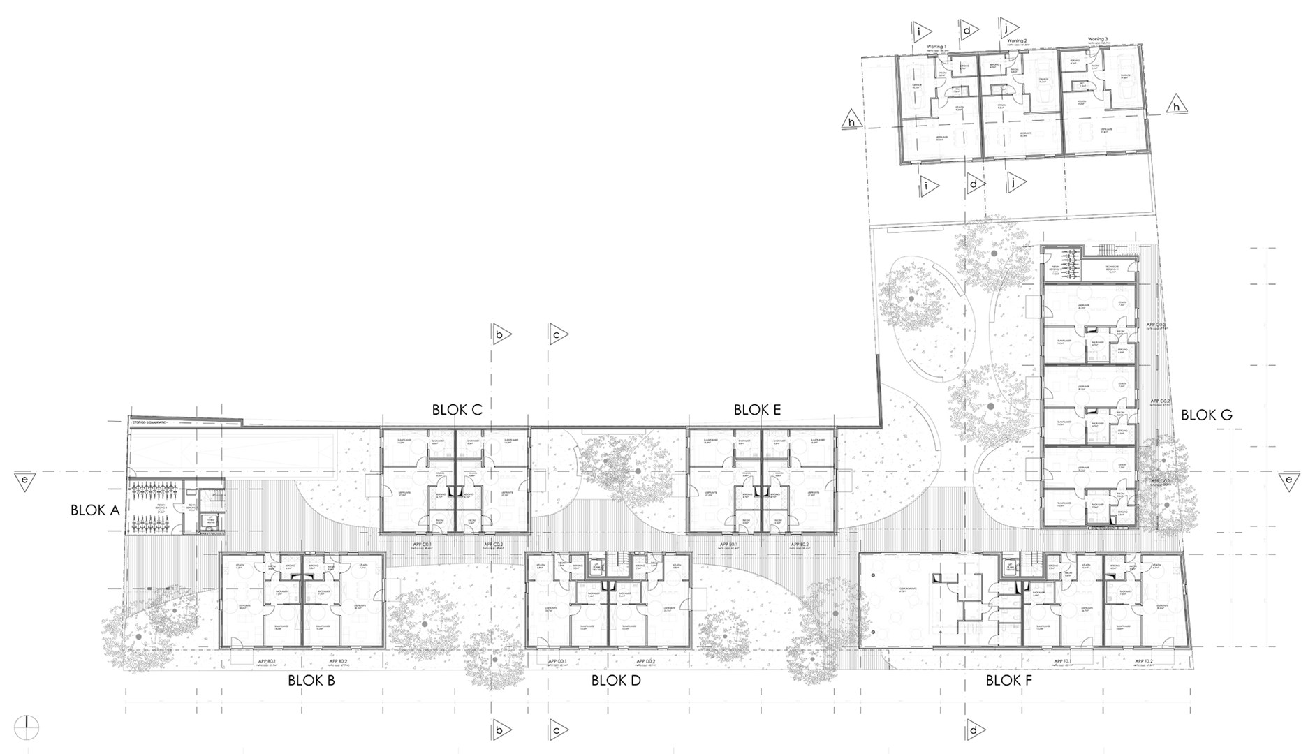
Met de recente oplevering van het stadsinbreidingsproject Ravelijnplein in Nieuwpoort wordt een antwoord geboden op de vraag hoe kwalitatieve en betaalbare woonvormen kunnen worden gerealiseerd binnen een verdichtende stadskern. Dit project, het winnende ontwerp binnen de wedstrijd "Jonge Architecten Aan Zet" (2014), werd ontworpen door maf architecten uit Kortrijk en gerealiseerd in opdracht van Woonmaatschappij IJzer en Zee. De site omvat 39 woongelegenheden, waaronder 36 assistentiewoningen, 3 koopwoningen en aanleunappartementen, en vormt samen met woonzorgcentrum De Zathe een geïntegreerde woon- en zorgomgeving.

De ontwerpwedstrijd "Jonge Architecten Aan Zet" werd in 2014 georganiseerd door de Orde van Architecten, NAV en Wonen in Vlaanderen om jonge architecten een platform te bieden voor innovatieve sociale woningbouw. Uit 57 inzendingen wist maf architecten zich te onderscheiden met een ontwerp dat flexibiliteit, duurzaamheid en architecturale kwaliteit combineert. Het project toont hoe goed opgezette wedstrijden kunnen bijdragen aan vernieuwende woonvormen en stadsontwikkeling.

Het Ravelijnplein is meer dan een verzameling woningen: het vormt een dynamische woonomgeving waar sociale interactie en zorg subtiel verweven zijn in de architectuur. De opzet van het plan zorgt voor een natuurlijke overgang tussen private en gedeelde ruimtes. Door een slimme schakeling van volumes en collectieve ruimten ontstaat een woonomgeving waarin bewoners zich op hun gemak voelen en ontmoeting gestimuleerd wordt.

Gaanderij als sociale ruggengraat

Tuin- en landschapsbureau Studio Basta ontwierp de binnentuinen als dynamische groene ruimtes die variëren in beleving en gebruik. Dit groen draagt niet alleen bij aan de woonkwaliteit, maar fungeert ook als buffer tussen de verschillende woonunits en het omliggende publieke domein. De binnenplaatsen wisselen af in karakter: sommige zijn meer publiek, andere bieden een beschutte en intieme sfeer voor de bewoners.

Een cruciaal element in het ontwerp is de overdekte gaanderij die alle woningen met elkaar verbindt. Deze aaneenschakeling van overdekte en halfopen ruimtes functioneert als spontane ontmoetingsplek en stimuleert sociale interactie. Bovendien faciliteert het zorg op maat op een efficiënte en discrete manier, wat de autonomie van bewoners vergroot en de vermaatschappelijking van zorg ondersteunt.

Licht, lucht en ruimte

Bij de realisatie van het project werd ingezet op slimme en duurzame bouwtechnieken. Door het terrein een halve meter op te hogen, werd de uitgraving voor de kelder beperkt en het grondverzet geminimaliseerd. Hierdoor kon een efficiënte en economische bouwmethodiek worden gehanteerd, terwijl de privacy van de gelijkvloerse woningen behouden bleef.

De volumewerking binnen het project zorgt ervoor dat alle woningen optimaal profiteren van daglicht, zowel in de zomer als in de winter. Door een doordachte plaatsing van de bouwvolumes genieten de bewoners van een aangename woonomgeving met voldoende lichtinval en doorwaadbaarheid.

Park als schakel

Centraal in het project ligt een park dat de schakel vormt tussen de verschillende woonvormen en het woonzorgcentrum De Zathe. Dit landschappelijke element biedt ruimte voor gemeenschappelijke activiteiten, ontspanning en interactie. Het park versterkt zo de samenhang tussen de zorgflats en woningen (via de tuin), tussen de zorgflats onderling (ontmoetingsruimte) en tussen de zorgflats en WZC De Zathe (traject WZC - ontmoetingsruimte). Het park laat grotere, gezamenlijke activiteiten toe aansluitend bij de ontmoetingsruimte en brengt rust en groen in het binnengebied.

Voor maf architecten betekende het project aan het Ravelijnplein een belangrijke stap in hun carrière. Sinds de oplevering heeft het bureau zijn expertise verder uitgebouwd binnen de domeinen van sociale woningbouw, masterplanning en publieke gebouwen. Het project toont hoe jonge architecten met frisse ideeën kunnen bijdragen aan innovatieve woonmodellen en kwalitatieve stadsontwikkeling.

Bron maf architecten

  • Deel dit artikel

Onze partners