UR Architects ontwerpt extraverte sporthal voor het Kiel
In 2012 zou het Kiel over een gloednieuwe buurtsporthal moeten beschikken. Het Belgisch-Nederlandse bureau UR Architects ontwierp een extravert gebouw dat dankzij het gebruik van polycarbonaatplaten daglicht naar binnen laat en ’s avonds voor een sfeervol schimmenspel zorgt.

Volgens het nieuwe structuurplan wordt het Kiel voor het eerst integraal onderdeel van Antwerpen. De site krijgt daardoor een strategische ligging in de Zuidrand. De buurtsporthal wordt opgelijnd met de bestaande sporthal langs de E. Vloorsstraat. De bestaande parking wordt verlegd, zodat ruimte ontstaat voor enkele sportterreinen.

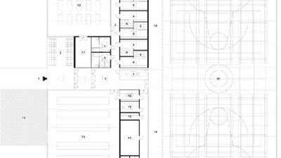
Inspelend op het campusgegeven stelden Nikolaas Vande Keere & Regis Verplaetse en hun team van UR Architects een gebouw voor dat communiceert naar alle zijden. De conventionele sporthaltypologie wordt binnenstebuiten gedraaid: sportzaal, danszaal en uitleendienst liggen aan de buitenzijde, centraal verbonden door een T-vormige dienstenzone.

Extravert i.p.v. introvert
De architectuur sluit aan bij het modernisme van de naburige gebouwen. Het dak als vijfde gevel beantwoordt de omringende hoogbouw met onder meer de bekende Braemblokken.
De zaalgevels worden uitgevoerd in meerwandig polycarbonaat. Deels translucent, deels transparant communiceert dit materiaal door het wisselende schimmenspel, en combineert het diffuse daglichttoetreding met een hoge isolatiegraad, wat leidt tot een zeer laag energieverbruik.

Technische fiche
Opdrachtgever: Stad Antwerpen
Ontwerp: UR architects - Nikolaas Vande Keere & Regis Verplaetse
Studiebureau: UTIL struktuurstudies & Studiebureau Boydens
Start bouwwerken: 2011
Einde bouwwerken: 2012
Investeringsbedrag: 2 586 000 euro (all in)
