Voormalige kerk wordt kantoorgebouw met buurtfuncties (OFFICEU architects)

  • image
  • image
  • image
  • image
  • image
  • image
  • image
  • image
  • image
  • image
  • image
  • image
  • image
  • image
  • image
  • image
  • image
  • image
  • image
  • image
  • image
  • image
  • image
  • image

In 2021 kocht het digitale communicatiebureau Springbok de honderd jaar oude en sinds 2014 niet langer gebruikte Sint-Albertuskerk in Muizen. Samen met architectenbureau OFFICEU architects for urbanity werkte Springbok een ambitieus herbestemmingsproject uit met een bijzondere dubbelfunctie: een nieuw internationaal hoofdkantoor, maar daarnaast ook een ontmoetingsplaats voor de buurt. Ambitieuze plannen, die je sinds vorige week ook van naderbij kunt bekijken op de tentoonstelling ‘Time Space Existence’ in het Palazzo Mora in Venetië, een expo in het nevencircuit van de Architectuurbiënnale.

In deze expo worden voltooide en lopende projecten, innovatieve voorstellen en utopische dromen van internationale architectenbureaus aan een ruimer publiek voorgesteld. Er worden drie projecten van het Belgische ontwerpbureau OFFICEU gepresenteerd, waaronder dus ook de herbestemming van de Sint-Albertuskerk in Muizen.

Flexibele indeling

Het is de bedoeling dat dit project wordt gerealiseerd tegen 2025. Dankzij de mix van traditionele en moderne architectuur wordt het gebouw veelzijdig functioneel, met respect voor de erfgoedwaarde. Naast het gebouw komt een nieuwe kopie van het kerkschip, met werkplekken op verschillende niveaus. De gehele ruimte in de kerk zelf blijft open en wordt multifunctioneel door een flexibele indeling. Buurtbewoners zullen er welkom zijn voor uiteenlopende activiteiten, zoals tentoonstellingen, concerten, bijeenkomsten, boeken- en doe-het-zelfclubs, en liefdadigheidsactiviteiten. De nieuw aangelegde parktuin zal het personeel van Springbok, hun bezoekers én buurtbewoners een ruimte geven om te ontspannen en tot rust te komen.

Ontwerp

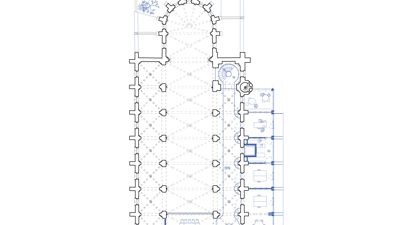
Het ontwerp is met grote zorgvuldigheid gebeurd, rekening houdend met en verder bouwend op de bestaande ruimtelijke kwaliteiten. Het kerkgebouw is te lezen als de samenstelling van twee delen: (1) het majestueuze rechthoekige kerkschip en (2) het verheven, concave koor. Beide delen worden evenwaardig ingezet in dit nieuw verhaal, doch met een verschillende ruimtelijke expressie.

Kerkschip, koor en toren

Het kerkschip is een indrukwekkende ruimte die vormgegeven werd om een grote groep mensen in volle verwondering een plek te kunnen geven. Het is dan ook vanzelfsprekend dat deze monumentale ruimtelijkheid wordt behouden en versterkt in de nieuwe functie voor de kerk. Het koor, met haar halfronde vorm en prachtige glasramen, is een zeer bijzondere plek in de kerk en barst van de symboliek. Deze meer intieme plek zal ook in dit nieuw hoofdstuk fungeren als het hart van de dagelijkse werking. In het knooppunt tussen beide delen bevindt zich de toren, als baken en aankondiging van de kerk in de wijde context.

Nieuw volume

Aan de tuinzijde wordt een volumetrische kopie van de middenbeuk van het kerkschip voorzien, zich vleiend langs de zijgevel van het kerkgebouw. Als eigentijdse en lichtrijke dubbelganger van het bestaande in essentie lege volume, is dit nieuwe element een open structuur met plateaus op verschillende niveaus, evolutief van aard, dat alle kwaliteiten voorziet voor stimulerende, comfortabele en eigentijdse werkplekken.

Het nieuwe volume voelt vertrouwd aan, want het kent een gelijkaardige vormelijke expressie en heeft dezelfde verhoudingen als de middenbeuk van de kerk, en vult de voorgevel op poëtische wijze aan, waarbij een meerlaagse en diepere lezing van het kerkgebouw wordt gegenereerd. Het volledige kerkschip, inclusief de zijbeuken, blijft zo behouden als open, flexibele, en multifunctionele ruimte, terwijl in het dakvolume een inspirerend landschap ontstaat van flexibele werkplekken.

Kroon van toevoegingen

Vanuit de radialen van het koor wordt een kroon van nieuwe toevoegingen voorzien, als een krans van straalkapellen. Hier wisselen ondersteunende functies zoals keuken, sanitair, bergruimte, … en intieme binnentuinen elkaar af. De gesloten wandvlakken tussen de pilasters worden opengewerkt, zodat het koor zich zal baden in het licht, met boeiende doorzichten en relaties. Het vernieuwde koor blijft het hart van het gebouw, en wordt de cafetaria, de praat- en leesruimte, de plek voor interactie en informele ontmoeting. Deze centrale plek is direct gelinkt met het kerkschip, en kan erin overvloeien, maar is ook visueel gelinkt aan de verschillende binnen- en buitenruimtes rondom rond, met de straat, en met de groene pastorijtuin.

Theatrale trap

In de toren wordt een theatrale trap voorzien die alle onderdelen van het project met elkaar verbindt en een vernieuwde ruimtelijke beleving van het kerkgebouw mogelijk maakt doordat ze nieuwe zichten creëert doorheen de kerk en een weids zicht biedt op de omgeving vanuit het uitkijkpunt bovenaan in de toren. Op de eerste verdieping linkt de trap aan een passerelle in de zuidelijke zijbeuk. Deze verbindt de verschillende kantoorruimtes met elkaar en met een vergaderruimte op het oksaal. De beleving vanop het oude balkon in de toren wordt hier gereconstrueerd en doorgetrokken doorheen de gehele kerk.

Het project van de herbestemming van de Sint-Albertuskerk wordt vanaf 20 mei gedurende zes maanden tentoongesteld op Time Space Existence in het Palazzo Mora. Naast de fysieke tentoonstelling, is de expositie vanaf 20 mei in de sectie Virtual Tours ook digitaal te bezoeken.

Bron Kerknet | OFFICEU architects for urbanity

  • Deel dit artikel

Onze partners