WV Architecten creëert met O’rizon in Aarschot een open woonproject met collectief karakter

  • image
  • image
  • image
  • image
  • image
  • image
  • image
  • image
  • image
  • image
  • image
  • image
  • image
  • image
  • image

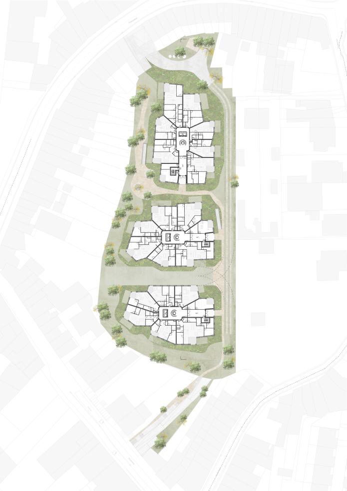
In het centrum van Aarschot zijn de werken volop aan de gang voor O’rizon, een duurzaam woonproject van Antonissen Development Group naar een ontwerp van WV Architecten. De site ligt op het hoogste punt van de stad, tussen de Tiensestraat, Maaldersstraat en Nieuwstraat. Hier verrijst een ensemble van drie unieke volumes, goed voor 76 appartementen en drie polyvalente ruimtes. De ligging biedt weidse zichten en een sterke verbinding met het bestaande stedelijke weefsel. Via een publieke doorsteek en een collectieve tuin krijgt ook de buurt toegang tot het groen, waardoor het project zich verankert in zijn omgeving.

De drie bouwvolumes – telkens met een centrale atriumhal en zeven tot acht appartementen per verdieping – zijn als stempels in het park ingeplant. Elk gebouw heeft zijn eigen interne logica, bepaald door de grenzen van het terrein, de lichtinval en de ruimtelijke context. Door de specifieke positionering ontstaan genereuze tussenruimtes die lucht en adem geven aan het landschap. De afstand tussen de volumes varieert, waardoor doorzichten worden versterkt en het reliëf van de heuvel voelbaar blijft. De architectuur is dus niet alleen functioneel maar ook strategisch ingezet om de ruimtelijke kwaliteit te verhogen.

Een rijk palet aan woningtypes

Binnen elk volume voorziet WV Architecten een mix van een-, twee- en drieslaapkamerappartementen, met telkens meerdere oriëntaties. Dat vertaalt zich in lichtrijke woningen met een hoog wooncomfort. Op de gelijkvloerse verdieping zijn er units met en zonder privétuin; vanaf de eerste verdieping beschikt elk appartement over een eigen terras. Door de centrale halstructuur gaat er weinig ruimte verloren en wordt de lichtinval geoptimaliseerd. Deze opbouw draagt bij aan een heldere en efficiënte circulatie, die bovendien in elk gebouw dezelfde basisstructuur volgt.

Naast de publieke doorsteek en tuin voorziet het project in drie overdekte gemeenschappelijke ruimtes, verspreid over de gebouwen. Per volume zijn er ondersteunende functies en collectieve voorzieningen die het samenleven stimuleren. De inkompartij is ruim en transparant en leidt naar een overdekte wachtplek, de wenteltrap met bovenlicht en de toegang tot de gemeenschappelijke delen. De circulatieruimte wordt zo meer dan een doorgangszone: het is een plek voor ontmoeting en interactie tussen bewoners.

Duurzame keuzes tot in de kern

O’rizon wordt volledig gasloos ontwikkeld en haalt een E-peil van 20, waardoor kopers vijf jaar vrijstelling van onroerende voorheffing genieten. In samenwerking met Helexia en Geoconsult wordt aardwarmte ingezet via een centrale geothermische installatie. Die zorgt voor vloerverwarming, sanitair warm water en passieve koeling in de appartementen. De installatie is opgevat als een leasingformule waarbij Helexia de eigenaar blijft tot twintig jaar na ingebruikname, waarna het eigendom overgaat op de bewoners. Dit energiesysteem sluit aan bij de ambitie om duurzaam en toekomstgericht te bouwen.

Niet minder dan 52,7% van de site is voorbehouden voor groene zones, waaronder privétuinen en beplanting. Daarnaast wordt er 910 vierkante meter aan groendaken aangelegd, wat bijdraagt aan de biodiversiteit en buffering van regenwater. Deze ingrepen maken van O’rizon niet enkel een aangename woonplek, maar ook een schakel in het stedelijke klimaatnetwerk. De landschappelijke inrichting sluit naadloos aan bij de architectuur, waardoor een sterk ensemble ontstaat waarin natuur en gebouw met elkaar in dialoog gaan.

Mobiliteit op maat van de stad

Ook op het vlak van mobiliteit kiest O’rizon voor een duurzame benadering. Er komen 99 ondergrondse parkeerplaatsen, waarvan er 10 gereserveerd zijn voor buurtbewoners, en nog eens 10 voor bezoekers. Het project voorziet laadpaalfaciliteiten, twee deelwagens, en in totaal 276 fietsstallingen, waarvan 252 ondergronds. Daarmee biedt het project een antwoord op de toenemende nood aan slimme en gedeelde mobiliteitsoplossingen, zonder de stad extra te belasten.

O’rizon laat zien hoe nieuwe woonprojecten kunnen inspelen op de toenemende druk op het stadsweefsel. Volgens prognoses van de Vlaamse overheid zal Aarschot tegen 2033 met zo’n 5,7% groeien tot meer dan 32.600 inwoners. In dat licht draagt O’rizon bij aan een duurzame verdichting van de stad, met aandacht voor open ruimte en leefkwaliteit. De doordachte inplanting, royale doorzichten en gedeelde functies zorgen voor een sterke relatie tussen bewoners, gebouwen en de buurt. Het resultaat is een open en toekomstbestendig woonmilieu dat inzet op samenleven en ruimtelijke samenhang.

Bron WV Architecten & Bereal

  • Deel dit artikel

Onze partners