ATAMA stapelt garage en studentenhuisvesting tot robuust mixed-use project ACG Gent

  • image
  • image
  • image
  • image
  • image
  • image
  • image
  • image
  • image

Op de IJzerweglaan in Ledeberg, op een steenworp van de Schelde en het B401-viaduct, wordt volop gewerkt aan ACG Gent, een multifunctioneel project van architectenbureau ATAMA waarin een autogarage en grootschalige studentenhuisvesting verticaal met elkaar worden verweven. Bouwheer is ACG Immo. Als partners zijn COBE, Studie 10, ORO en Bureau De Fonseca BV betrokken. Het project herdefinieert de manier waarop economische activiteit en wonen in een stedelijke randzone kunnen worden gestapeld. Tegen september 2026 moeten zowel de nieuwe showrooms als de studentenhuisvesting in gebruik zijn.

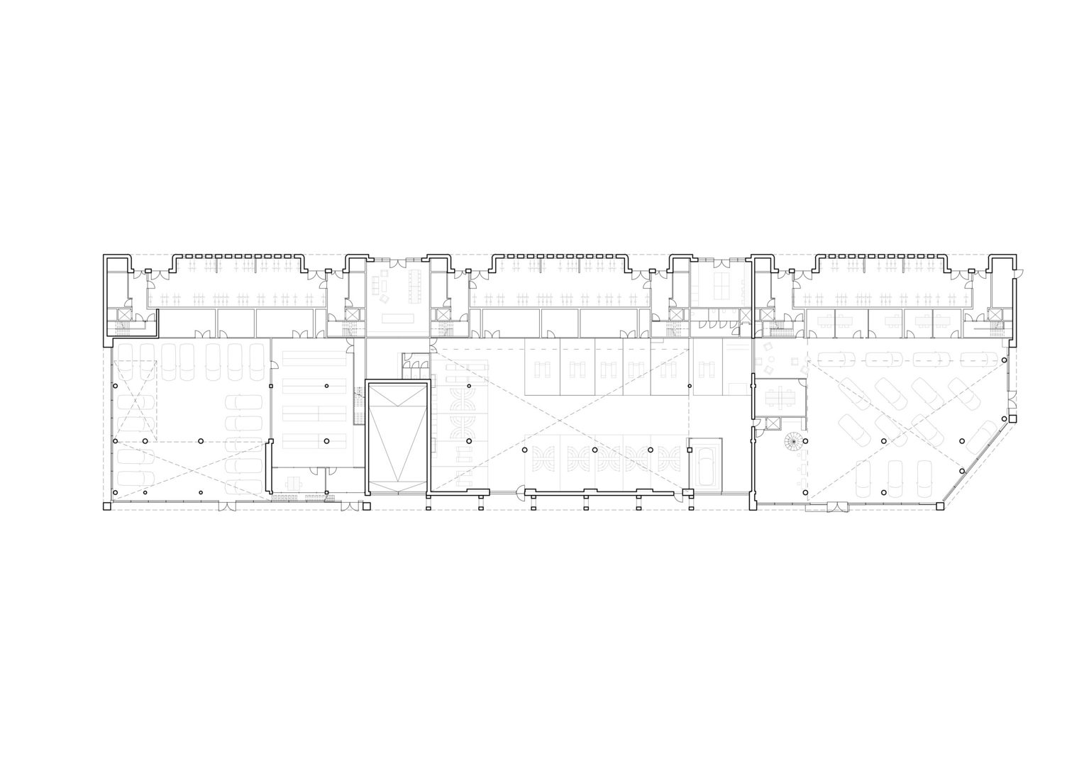
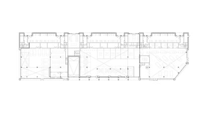
De site van circa 15.200 m², vandaag grotendeels verhard en ingenomen door showrooms en parkeerzones, ondergaat een volledige hertekening. Alle bestaande bebouwing werd gesloopt en wordt vervangen door een nieuw hoofdvolume van vijf bouwlagen onder plat dak, met een kroonlijsthoogte van 16,30 meter, aangevuld met een vrijstaand paviljoen van twee bouwlagen aan de straatzijde. Twee ondergrondse niveaus vangen het merendeel van de 301 parkeerplaatsen op, waarvan 269 voor stockwagens, zodat bovengronds ruimte vrijkomt voor groenaanleg en een aanzienlijke ontharding.

Stapeling als ruimtelijke strategie

Het project is opgevat als een duidelijke stapeling van functies. De gelijkvloerse en eerste verdieping herbergen de autoconcessies voor Volvo en Maserati, met werkplaatsen, kantoren en showrooms aan de zuidzijde, georiënteerd op de IJzerweglaan. In het zuidwesten staat een apart paviljoen voor Polestar, met een netto verkoopoppervlakte van 287,56 m². Samen omvat het handelsgeheel 1.611,12 m² netto showroomruimte, ondergebracht in drie units.

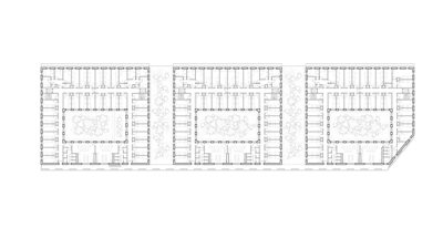
Boven deze economische plint ontvouwt zich de studentenhuisvesting. Vanaf de tweede verdieping wordt het volume uitgehold met patio’s, waardoor drie torenvormige volumes ontstaan, elk circa 36 meter breed en 35 meter diep. Tussen de torens zitten openingen van 8,8 meter; de patio’s zelf meten 10,2 bij 20,6 meter. Die insnijdingen zorgen voor licht en lucht in de diepte van het bouwblok en breken de schaal richting de achterliggende tuinwijk, waar een afstand van 15 meter tot de perceelsgrens wordt gerespecteerd.

Drie hofgebouwen en een ‘studentenstraat’

Aan de noordzijde, naar de woonwijk toe, maakt de blinde muur van de oude garage plaats voor drie hofgebouwen met toegangen aan een nieuwe ‘studentenstraat’. Die private as voor voetgangers en fietsers verbindt de Gaston Crommenlaan met het jaagpad langs de Schelde en fungeert als adreszijde voor de studenten. Zes inkomzones — telkens twee per toren — geven toegang tot de clusters en de inpandige fietsenstallingen.

In totaal worden 343 bedden gerealiseerd, georganiseerd in verschillende typologieën. Op de eerste verdieping bevinden zich per toren clusters van negen kleine kamers en één grotere tweepersoonskamer, telkens rond een leefkeuken van circa 39 m² en een sanitair blok met drie douches en drie toiletten. Op de hogere verdiepingen worden kamers geclusterd per vijftien rond een leefkeuken van ruim 44 m², aangevuld met studentenappartementen op de hoeken, waaronder integraal toegankelijke units. De individuele kamers variëren in oppervlakte tussen ongeveer 12 en 15 m².

Collectiviteit als architecturaal motief

ATAMA zet nadrukkelijk in op collectieve ruimtes als tegengewicht voor de compacte kamers. Op het gelijkvloers bevinden zich een ontvangstruimte en een wasserette; op de eerste verdieping wordt, boven de garage en weg van de achterliggende woningen, een grote gemeenschappelijke studieruimte ingericht. Die ruimte werd in het adviestraject expliciet gewaardeerd als een bijzondere kwaliteit binnen het project.

Het ontwerp doorliep een traject met Team Stadsbouwmeester en de Gentse Kwaliteitskamer, met sessies in maart en augustus 2023. Daarbij werden onder meer inplanting, volumetrie, brandweerbereikbaarheid en de combinatie van economische functie en wonen besproken en verfijnd. De Kamer sprak zich positief uit over de heldere opbouw, de verticale stapeling en de ruimtelijke verdichting die uit de combinatie van functies voortvloeit.

Een kloek casco en een lange groene wand

Architecturaal kiest ATAMA voor een uitgesproken dubbel karakter. De zuidgevel, gericht op de economische activiteit, krijgt een transparante plint met grote glaspartijen en zwart geëtst beton tussen de showrooms. Daarboven loopt over de volledige breedte een passerelle die toelaat een groengevel te ontwikkelen, goed voor een circa 125 meter lange, begroeide wand die de bovenliggende studentenverdiepingen visueel verzacht.

De noord- en zijgevels worden afgewerkt met donkergrijze baksteen in de plint en leien in een warme, donkere tint op de bovenbouw, gecombineerd met houten schrijnwerk voor de studentenkamers. Het beeld is uitgesproken repetitief: het gebouw toont zijn programma zonder overbodige verspringingen. De materialisatie werd in het ontwerpproces expliciet besproken in relatie tot verwering, detaillering en de robuustheid van het casco, om het beoogde abstracte en krachtige beeld te vrijwaren.

Ontharding en park als tegengewicht

Een van de meest ingrijpende transformaties situeert zich op het maaiveld. Waar vandaag circa 10.380 m² verhard is, wordt in de nieuwe toestand een aanzienlijke reductie gerealiseerd. Bovengronds worden 39 parkeerplaatsen voorzien voor bezoekers en personeel; het merendeel van de wagens verdwijnt ondergronds. Langs de noordelijke perceelsgrens wordt een zeven meter brede groenbuffer aangelegd, vier à vijf meter hoog, om de overgang naar de tuinwijk te verzachten.

Aan de westzijde wordt 2.041 m² grond kosteloos overgedragen aan de Stad Gent, om in te richten als publiek park in aansluiting op de groene klimaatas langs de Schelde. Een wadi, houten vlonderpaden en nieuwe boomaanplantingen maken van het voormalige parkeerterrein een landschappelijke ruimte, terwijl infiltratievoorzieningen en hemelwaterputten inspelen op de strikte waterhuishoudingseisen.

Mobiliteit en beheer als ontwerpopgave

De mobiliteitsstructuur volgt de functionele scheiding. Gemotoriseerd verkeer voor de garage ontsluit via de zuidzijde; studenten en fietsers gebruiken de noordelijke as. Er worden 421 inpandige fietsenstallingen voorzien voor bewoners en 60 voor bezoekers. Voor de studentenhuisvesting worden geen reguliere autoparkeerplaatsen ingericht, in lijn met het Gentse beleid, terwijl de parkeervraag van de garage volledig op eigen terrein wordt opgevangen.

ACG Gent is daarmee meer dan een optelsom van een dealership en studentenunits. Het project toont hoe een bestaande, grotendeels verharde site kan transformeren tot een gelaagde stedelijke structuur waarin economie, wonen en publiek groen worden gecombineerd. De schaal is uitgesproken, maar wordt gearticuleerd via patio’s, buffers en een consequente materialisatie. De combinatie van een robuust casco, een expliciete collectieve laag en een doorgedreven afstemming met de stedelijke randvoorwaarden geeft het project zijn duidelijke, stedelijke ambitie.

Bron ATAMA, Rietveld Projects & Stad Gent

  • Deel dit artikel

Onze partners