B2Ai en West Architectuur ontwerpen circulair en volledig demonteerbaar ontmoetingscentrum SOK Deurne-Diest

  • image
  • image
  • image
  • image
  • image
  • image
  • image

De stad Diest koos B2Ai Architects, West Architectuur en aannemer Beneens Bouw & Interieur voor de bouw van het nieuwe SOK ontmoetingscentrum in deelgemeente Deurne. Het gebruiksvriendelijk, toegankelijk en duurzaam gebouw is het resultaat van een intensief participatietraject waar de noden en verwachtingen van verenigingen, sporters en dorpsbewoners bevraagd werden. Het stadsbestuur van Diest hoopt om in het najaar van 2024 van start te gaan met de werken. De uitvoeringstermijn wordt geschat op anderhalf jaar.

Het project kadert in het herinrichtingsplan voor de site SOK opgemaakt door Atelier Romain. Het masterplan positioneert het ontmoetingscentrum, de gemeentelijke basisschool, buitenschoolse kinderopvang en accommodatie voor voetbalclub SK Deurne.

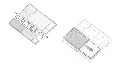
Het nieuwe ontmoetingscentrum omvat een ruime polyvalente zaal, met keuken en bar, die kan opgesplitst worden in kleinere units die dienst kunnen doen als vergaderlokalen. Er is bergruimte voor de verenigingen. Er komt een café met aparte keuken. Voetbalclub SK Deurne krijgt een kantine, weliswaar voor gedeeld gebruik. Bijkomend worden voor de club de nodige kleedkamers, sanitaire ruimtes, EHBO-lokaal en bergruimte voorzien.

 

CLT-bouw

Het team kiest voor circulair bouwen, met een bewuste keuze voor CLT-bouw (cross-laminated timber), met hernieuwbare energie en een climate responsive-design. Het gebouw wordt opgebouwd volgens een vaste typologie met een grid van 5 op 5, waardoor deze materialen modulair opgebouwd kunnen worden en in de toekomst uitwisselbaar zijn met andere gebouwen. Doordat het gebouw volledig demonteerbaar is hebben de materialen een hogere restwaarde.

Bron B2Ai

  • Deel dit artikel

Onze partners