Stramien, NUDUS en Bedaux de Brouwer transformeren Tilburgse Spoorzone

  • image
  • image
  • image
  • image
  • image
  • image

Het Antwerpse ontwerpbureau Stramien cv heeft samen met de Nederlandse bureaus NUDUS en Bedaux de Brouwer Architecten de architectuurwedstrijd gewonnen voor de herontwikkeling van de Koepelhal en de Wagenmakerij in Tilburg. Deze herontwikkeling vormt het stedenbouwkundig sluitstuk van de Spoorzone. Het winnende ontwerp voor De Verhalenmakerij, zoals het project heet, is het resultaat van een intense samenwerking met SDK Vastgoed B.V. en de Gemeente Tilburg. Het project opent de deuren van twee iconische gebouwen en verbindt verleden, heden en toekomst in een nieuw, levendig stadsdeel.

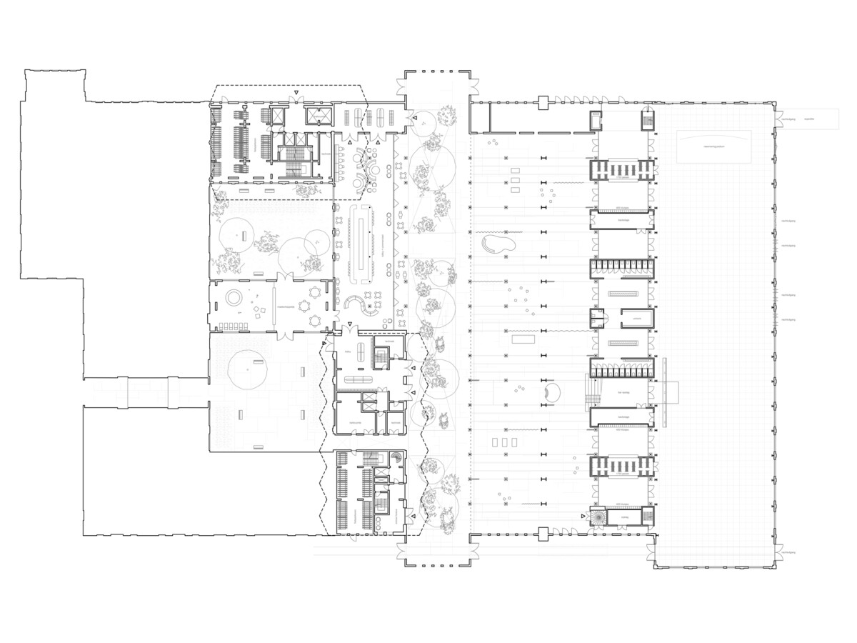
De voormalige Wagenmakerij vormt het hart van het nieuwe ensemble. Ooit een gesloten industriële hal waar wagons werden gebouwd en hersteld, wordt deze ruimte nu een publieke stadshal: een toegankelijke, flexibele ‘middoor’-omgeving tussen binnen en buiten, geschikt voor tentoonstellingen, markten, evenementen en spontane ontmoetingen. Een reeks oplichtende, eigentijds geïnterpreteerde ‘wagons’ herstellen de historische band met de Koepelhal en herbergen de nodige voorzieningen. Deze ingrepen maken van het geheel een robuuste evenementenlocatie én creëren een nieuw herkenningspunt in het stadsbeeld.

Herbestemming van erfgoed tot publieke stadshal

Ook de Koepelhal krijgt een publieke invulling en wordt nauw verweven met de Wagenmakerij. De twee monumentale hallen vormen samen een krachtige architecturale tandem. Waar de Koepelhal eerder dienstdeed als gesloten eventlocatie, maakt het ontwerp deze plek transparanter en toegankelijker. Door fysieke verbindingen, gedeelde functies en een logische circulatie ontstaat een samenhangend geheel dat uitnodigt tot gedeeld gebruik, zowel door buurtbewoners als bezoekers van buitenaf.

Een tweede belangrijke ingreep betreft de transformatie van de Rolwagenbaan, de oorspronkelijke transportroute van wagons, tot een volwaardige publieke stadsstraat. Door het verwijderen van delen van het dak ontstaat een open, lichte en groene sfeer die het buitengevoel versterkt. Deze nieuwe stedelijke passage verbindt verschillende functies en maakt ruimte voor wonen, ontmoeting, en stedelijke rust. Het resultaat is een doorwaadbare zone waar geschiedenis, natuur en stadsleven elkaar vanzelfsprekend ontmoeten.

Groene stadsstraat verbindt wonen, erfgoed en stedelijk leven

Bovenop de hallen verrijzen twee sculpturale woontorens, zorgvuldig geplaatst binnen de bestaande wandstructuur om de erfgoedwaarde van de gebouwen niet te verstoren. Ze zijn bewust naar de randen geschoven, zodat de monumentale ruimtelijkheid van de hallen behouden blijft. De torens delen een collectief dakterras en huiselijke gemeenschappelijke ruimtes die sociale interactie stimuleren. Deze nieuwe woonlaag introduceert een eigentijdse dimensie in het erfgoedcomplex, en toont hoe hedendaagse woonvormen kunnen aansluiten bij historische context.

Het uitgangspunt van het ontwerpteam is het principe van voortbouwen: niet vervangen, maar versterken. Bestaande materialen worden hergebruikt, ruimtelijke kwaliteiten worden behouden en waar nodig verrijkt met duurzame, circulaire toevoegingen. Biobased materialen en klimaatadaptieve strategieën zorgen voor een toekomstbestendig ensemble. De Verhalenmakerij wordt zo een plek waar het industriële verleden van Tilburg niet verdwijnt, maar juist de basis vormt voor een nieuwe, bruisende publieke ruimte – een levendig stedelijk hart waar telkens opnieuw nieuwe verhalen kunnen ontstaan.

Bron Stramien, NUDUS & Bedaux de Brouwer

  • Deel dit artikel

Onze partners