Stek Future: eerste coöperatieve woonproject van wooncoop in Leuven (ectv architecten)

  • image
  • image
  • image
  • image
  • image
  • image
  • image
  • image
  • image
  • image
  • image
  • image
  • image
  • image

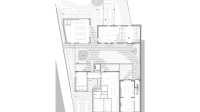
In de Gemeentestraat in Kessel-Lo verrijst binnenkort Stek Future: het eerste coöperatieve woonproject van wooncoop in Leuven. Op een terrein met een oude erfstructuur, met woningen, bijgebouwen en een grote achterliggende tuin, ontwierp ectv architecten een cohousingproject met acht woonentiteiten en een gedeeld programma. Het ontwerp vertrekt vanuit de bestaande structuur van straat, erf en tuin, en vertaalt die logica in een nieuwe ruimtelijke samenhang. De bestaande rijwoning aan de straat wordt behouden en vormt samen met een nieuw volume een markante hoek aan het Toekomstpad. De omgevingsvergunning voor het project is afgeleverd en de afbraakwerken zijn inmiddels gestart.

De bewonersgroep achter Stek Future gelooft sterk in het samenleven met gedeelde ruimtes, spullen en verantwoordelijkheden — een manier van wonen die tegelijk duurzamer, socialer en kwalitatiever is. In plaats van klassieke eigendomsverhoudingen kiezen ze voor coöperatief wonen, waarbij verbondenheid en collectief gebruik centraal staan. Het project nestelt zich in een stedelijke context, met aansluiting op het bestaande straatbeeld én op het groene karakter van het binnengebied. Doorzonwoningen met dubbele oriëntatie zorgen voor licht, lucht en contact, zowel met de straat als met het erf.

Balans tussen collectief en individueel

De architectuur van ectv houdt rekening met de schaal en materialiteit van de plek. De rijwoning aan de westzijde wordt aangevuld met een nieuwbouwvolume dat het bestaande gabarit volgt, zodat oud en nieuw samen een nieuwe eenheid vormen. Alle woningen zijn gepositioneerd tussen straat en erf, en krijgen een open doorzonkarakter dat inspeelt op lichtinval en zichtlijnen. De overgang van publiek naar gedeeld en privaat wordt zorgvuldig geënsceneerd, met aandacht voor informele ontmoetingen en collectief gebruik. ectv tekende ook het ontwerp voor een ander coöperatief woonproject, in de wijk Heulebrug in Knokke-Heist, en brengt ook hier die ervaring mee in de verfijnde balans tussen individueel wonen en gedeeld leven.

Ook het erf en de tuin krijgen een nieuwe invulling met respect voor het bestaande. Enkele achterbouwen worden afgebroken, maar een karaktervolle schuur blijft behouden en krijgt een tweede leven als fietsenstalling, atelier en bergzolder. Centraal op de site komt een nieuwe tuinkamer, opgetrokken in gerecupereerde gevelstenen, die dienstdoet als collectieve keuken en eetruimte. Een brede doorgang tussen de gebouwen leidt naar een overdekt terras dat de tuin ontsluit en de tuinkamer verbindt met het groen. Zo ontstaat een sequentie van ruimtes die het gemeenschapsleven versterkt en de ecologische en sociale ambities van Stek Future tastbaar maakt.

Bron cooperatiefwonen.be

  • Deel dit artikel

Onze partners