Werken gestart aan coöperatief woonzorgproject De Boomgaard in Kessel-Lo (B-ILD)

  • image
  • image
  • image
  • image
  • image
  • image

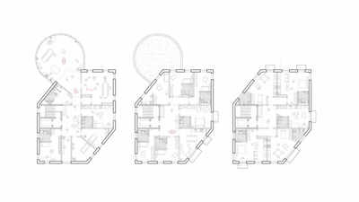
In Kessel-Lo zijn na een lange voorbereidingsperiode de werken gestart aan het coöperatief woonzorgproject De Boomgaard, een ontwerp van B-ILD. Opdrachtgever is Livez cv so, de coöperatie van De Wissel, Woonzorgnet-Dijleland, Oostrem vzw, Zorg Leuven en Stadsmakersfonds, met ECoOB als mede-opdrachtgever. Vorige week gingen de afbraakwerken van de voormalige schoolgebouwen aan de Wilselsesteenweg van start. Daarmee begint de realisatie van een project dat 1.500 m² ruimte voorziet voor buurtgerichte zorg, wonen en ontmoeting.

De verouderde school maakt plaats voor twee nieuwbouwvolumes in een groene setting. B-ILD ontwierp vrijstaande gebouwen die het landschap tot aan de straatzijde laten doorlopen en zo het open karakter van de plek versterken. Het programma combineert modulaire zorgkamers, duo-woningen, gezinswoningen en studio’s met een laagdrempelige ontmoetingsplek voor de buurt. De opzet is expliciet niet-exclusief: bewoners met uiteenlopende zorgvragen wonen er samen met buurtbewoners, met als doel wooncontinuïteit in de eigen wijk mogelijk te maken.

Gefaseerde uitvoering tot zomer 2027

De werken starten met het vrijmaken van het terrein en de afbraak van de bestaande gebouwen. In het voorjaar van 2026 volgen de graafwerken en de aanleg van de kelders, eerst voor het achterste volume aan de Genadeweg en vervolgens voor het gebouw aan de straatzijde. Zodra de vloerplaten op het gelijkvloers zijn afgewerkt, worden beide gebouwen gelijktijdig opgetrokken. Tegen het einde van 2026 moeten de ruwbouwwerken afgerond zijn.

In 2027 staan de plaatsing van daken en buitenschrijnwerk, de technieken en de binnenafwerking op de planning, samen met de omgevingsaanleg en de bouw van een buurtpaviljoen. Dat paviljoen wordt later in het proces gerealiseerd omdat op die locatie tijdens de ruwbouw een torenkraan wordt opgesteld. De oplevering is voorzien tegen de zomer van 2027.

Buurtwerking blijft actief tijdens de bouw

Opvallend is dat de buurtwerking, die de voorbije jaren al in de oude schoolgebouwen groeide, gewoon wordt voortgezet. De soepclub, het buurtcafé en tijdelijke evenementen verhuizen tijdens de bouwfase naar het aanpalende woonhuis. Zo blijft De Boomgaard ook tijdens de werfperiode functioneren als ontmoetingsplek in de wijk.

Met De Boomgaard wil Livez zorg opnieuw een plaats geven midden in de samenleving. Het project geldt als pilootcase voor een breder model van buurtgerichte zorg en wordt ondersteund door een stevig partnernetwerk. Ingenieur stabiliteit van het project is BAS bvba, aannemer Everaert-Cooreman staat in voor de uitvoering, Stabico-Stir by Studibo verzorgt technieken en EPB, Buitenruimte tekent de omgevingsaanleg uit en Miss Miyagi neemt de projectcoördinatie op zich. Na jaren voorbereiding verschuift de focus nu definitief naar de realisatie op het terrein.

Bron Stadsmakerfonds

  • Deel dit artikel

Onze partners